Teton County Wyoming Housing Department Homepage
Search

Unit 206 & 304 Grove Phase 1, 250 Scott Lane

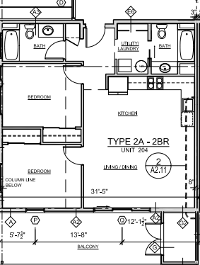
Unit 206: Also available is one 2 bedroom, 2 bathroom unit, 865 square feet, range, refrigerator, dishwasher, microwave, large deck, storage, and washer & dryer, NO PETS ALLOWED. Monthly rental amount is $1,350.00.

Unit 304: The Housing Department one 2 bedroom plus (extra alcove area), 2 bathroom unit available, 1009 square feet, range, refrigerator, dishwasher, microwave, large deck, storage, and washer & dryer, NO PETS ALLOWED. Monthly rental amount is $1,400.00.

The monthly rental amount includes electricity, water, sewer, and trash. First month’s rent and security deposit will be due when signing the lease. The security deposit amount is equal to one month’s rent. For both of these units, the rental term will begin in November 2018.

Income Range: 80% to 120% of the Median Family Income

Occupancy Requirement: one or more adults with one or more dependents OR two or more adults. Couples must apply with another person.  

Floor Plans Unit 206

Floor Plans Unit 304

Households that earn 80% to 120% of the Median Family Income for Teton County may enter the weighted drawing. That means to be eligible to enter the drawing for these rentals, your household’s gross income (before taxes) must fit into the range listed below:

Two Person Household $63,041 to $94,560

Three Person Household $70,921 to $106,380

Four Person Household  $78,801 to $118,200

Five Person Household $85,105 to $127,656

Household net asset limit (asset value minus debt): $236,400

Calculation of Income:

Household income is based on the current income earned by all intended adult occupants of the rental unit at the time of weighted drawing using the current household income to estimate an annual (12 month) income basis. Households must use their current income and may not make changes or adjustments to earnings in order to fit within the income range.

Business income of a qualifying Household is calculated using an average of the last three (3) years of income on the business’ tax returns. A year to date profit and loss determination will also be used to calculate business income. If the business has not been operating for three (3) years, the Housing Department will average income over the time the business has been operating.

The deadline to enter the weighted drawing for this home is Tuesday September 11, 2018 by 4:00 p.m. No late or incomplete entries will be allowed, no exceptions. If selected first for this unit you will be notified by phone. All others will be sent an email notice.

Eligibility Requirements:

Please note the policies in effect to enter any weighted drawing. The Housing Department Intake form must be filled out and submitted to enter this or any drawing. If you have not submitted an Intake form prior to the beginning of this drawing (August 29th) you will not be eligible to apply.

A complete Application with an up to date credit report and credit score must be submitted with your weighted drawing entry sheet. If the Housing Department has a credit report on file dated within the last year, you will not be required to submit another one.

Forms needed to enter this lottery:

Rental Application Checklist

Rental Application

Affordable Rental Guidelines

  1. Popular Pages

Contact Us

  1. Physical Address:

  2. 320 South King Street

  3. Jackson, WY 83001

  4. Directions

  5.  

  1. Phone: 307-732-0867

  2. Fax: 307-734-3864

  3.  

  4. P.O. Box 714

  5. Jackson, WY 83001

  1. Logo Housing White.png

About Us

  1. The Housing Department works to create health housing solutions so that our workforce can live, spend, and volunteer locally, maintaining the community character we all cherish.  Learn more about our mission by visiting our About page.

Government Websites by CivicPlus®
Arrow Left Arrow Right
Slideshow Left Arrow Slideshow Right Arrow