Teton County Wyoming Housing Department Homepage
Search

848 W. Snow King Avenue, Unit #35

Exterior Front - 848 W Snow King
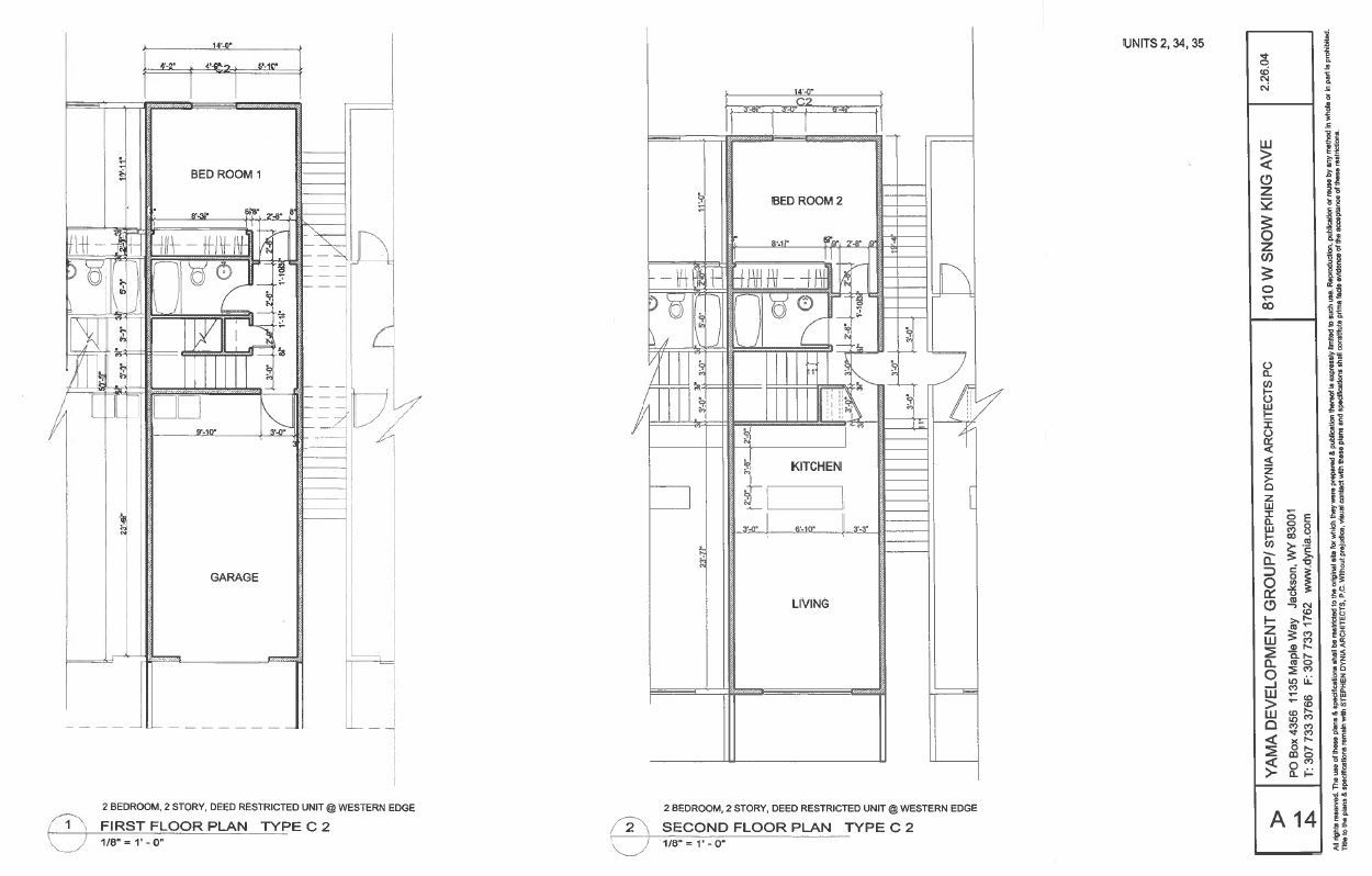
Floor Plan - 848 W Snow King

Closed 4/30/2019. Sale Price $243,810

848 W, Snow King Avenue, Unit #35

2- bedroom, 2- bathroom, 1,092 square feet, 1 car garage, range, refrigerator, dishwasher, washer & dryer, 1 pet allowed.  

Sales Price: $243,810

Workforce ownership unit - see eligibility requirements, below.

Occupancy Requirement: One (1) or two (2) adults with one (1) or more dependents

Deadline to Apply: Tuesday, March 5, 2019 by 4:00 p.m. No late or incomplete entries will be accepted.

We understand that our applications to enter into the weighted drawing take time and effort, and we do not want to disqualify you due to an oversight or misunderstanding about our process. Please bring your applications in prior to the due date so that we have time to work with you, make corrections, and give feedback if anything is wrong.

Calculation of income:

Household income is calculated based on the current income earned by all intended adult occupants of the Restricted Housing Unit at time of weighted drawing entry using the current household income to estimate an annual (12 month) income basis. Households must use their current income and may not make changes or adjustments during a drawing period.

 Business income of a qualifying Household is calculated using an average of the last three (3) years of income on the business’ tax returns. A year to date profit and loss determination will also be used to calculate business income. If the business has not been operating for three (3) years, the Housing Department will average income over the time the business has been operating.

Proof of one-year full-time employment, a completed Lenders Qualification Worksheet with an up to date Credit Report (provided by a local lender, AnnualCreditReport.com, or CreditKarma.com), and a completed Home Buyer Education Class Certificate all must be attached to the Weighted Drawing Entry Sheet or on file with the Housing Department.

 The Housing Department will keep your Lender's Qualification on file for one year. The Home Buyer Education Certificate is good indefinitely. 

Please make sure the loan amount on your Lender's Qualification worksheet is for at least the purchase price minus your down payment of the home for which you are applying. You must be able to prove your ability to secure financing.

 You may receive one additional entry into the drawing for every year of verified full-time employment (minimum of 1,560 hours) in Teton County with a maximum of 10 years/entries. 

Eligibility Requirements:

 

  1. 75% of the Households combined income must be earned in Teton County
  2. Household must live in the home 10 months out of each year
  3. Household may not own any residential real estate within 150 miles of Teton County
  4. At least one member of the Household must work a minimum of 30 hours per week (or a minimum of 1,560 hours per year) in Teton County for at least one year

 

Example cost break down for a purchase price of $243,810:

 



3.5% down payment (required)

$8,533

Loan Amount

$235,277

Principal & Interest Payment (estimated 5%)

$1,468

Property Tax (estimate)

$116

Insurance (estimate)

$100

HOA Dues (estimate)

$238

Total Estimated Monthly Payment

$1,922

 

We recommend you speak to a local lender about all your financing options.

 Forms needed to enter the weighted drawing: 

 Please click to view the following PDFs:  











  1. Popular Pages

Contact Us

  1. Physical Address:

  2. 320 South King Street

  3. Jackson, WY 83001

  4. Directions

  5.  

  1. Phone: 307-732-0867

  2. Fax: 307-734-3864

  3.  

  4. P.O. Box 714

  5. Jackson, WY 83001

  1. Logo Housing White.png

About Us

  1. The Housing Department works to create health housing solutions so that our workforce can live, spend, and volunteer locally, maintaining the community character we all cherish.  Learn more about our mission by visiting our About page.

Government Websites by CivicPlus®
Arrow Left Arrow Right
Slideshow Left Arrow Slideshow Right Arrow